+49 23170096934 info@bayerimmobilien.com

Angebotsverfahren: Vermietete Doppelhaushälfte in Dortmund- Bittermark! Mit Garage und Garten!

44229 Dortmund, Doppelhaushälfte zum Kauf

Kontaktdaten

Mariya Fisenko, Bayer Immobilien

Objektdaten

  • Objekt ID
    20230205
  • Objekttypen
    Doppelhaushälfte, Haus
  • Adresse
    44229 Dortmund
  • Etagen im Haus
    2
  • Wohnfläche ca.
    125,35 m²
  • Grund­stück ca.
    330 m²
  • Nutzfläche ca.
    49,41 m²
  • Zimmer
    5
  • Badezimmer
    1
  • Separate WC
    1
  • Terrassen
    1
  • Heizungsart
    Zentralheizung
  • Wesentlicher Energieträger
    Gas
  • Baujahr
    2000
  • Zustand
    gepflegt
  • Status
    vermietet
  • Verfügbar ab
    vermietet
  • Stellplatz:
    1 Stellplatz
  • Garage:
    1 Stellplatz
  • X-fache Miete
    32,24
  • Mieteinnahmen (Ist)
    13.959,00 EUR pro Jahr
  • Mieteinnahmen (Soll)
    13.959,00 EUR pro Jahr
  • Kaufpreis
    310.000 EUR

Ausstattung / Merkmale

  • Keller
  • Separates WC
  • Terrasse

Objekt­beschreibung

Beschreibung

Um gestiegene Finanzierungskosten fair zu berücksichtigen wird die Immobilie transparent über ein professionelles Angebotsverfahren verkauft. Nach dem Besichtigungstermin erhalten Sie von uns eine Einladung per Mail mit einem Link zu dem Angebotsverfahren, sodass für Sie alles ganz unkompliziert abläuft. Das Verfahren endet am 24.04.2023 um 18:00 Uhr. Bis zu diesem Zeitraum haben Sie die Möglichkeit Ihr Angebot anonymisiert abzugeben. Falls Sie überboten werden, erhalten Sie eine Infomail und können jederzeit und beliebig oft bieten. Optional kann das Haus auch mit einem Sofortkaufpreis von 390.000 € erworben werden.

Bitte melden Sie sich nach Durchsicht des Exposés bei uns, im Nachgang erhalten Sie nach Vorlage einer Finanzierungsbestätigung einen konkreten Terminvorschlag:

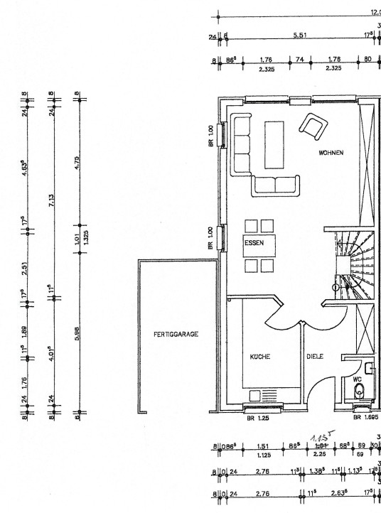
Diese hier angebotene Doppelhaushälfte aus dem Jahre 2000 befindet sich in einer ruhigen Wohnsiedlung in Dortmund-Bittermark. Die Immobilie ist aktuell vermietet und in einem gepflegten Zustand.

Auf einer Wohnfläche von ca. 125,35 m², die sich auf 5 Zimmer verteilen, gibt es genügend Platz zum Wohlfühlen.

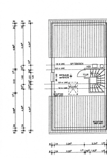
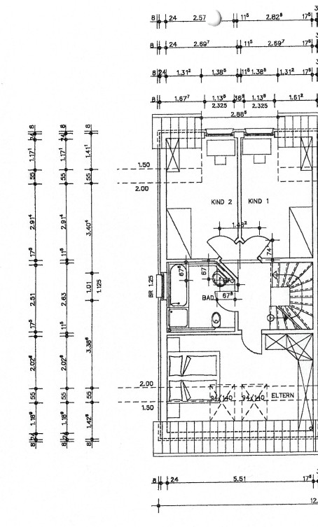
Über einer einladenden Diele mit Garderobe sowie einem Gäste-WC erreichen Sie die Küche. Die Küche lädt zu entspannten Kochabenden mit Freunden und der Familie ein. Weiterführend eröffnet sich Ihnen das Herzstück des Hauses, das Wohnzimmer mit Essbereich und Zugang zum Garten. Dieser bietet mehr als ausreichend Platz für die Familie und einen überdurchschnittlichen Gartenbereich. Im Obergeschoss befinden sich zwei Kinderzimmer und ein Arbeitszimmerzimmer. Auf dieser Ebene findet sich auch das Duschbad mit Badewanne und WC. Dieses ist mit einem Tageslichtbad ausgestattet. Im Dachgeschoss befindet sich ein Kinderzimmer.

Letzte Modernisierungen:
- Erneuerung der Gastherme 2022

Derzeit ist das Haus gegen eine solide Kaltmiete von 1.163,25€ vermietet. Die Jahresmieteinnahmen beträgt demnach 13.959,00 € p.a..

Ausstattung

+ Sofortkaufpreis 390.000€
+ Garage
+ Garten
+ Terrasse
+ Manuelle Rollläden
+ Tageslichtbad
+ Keller

Sonstige Informationen

Die Vermittlung dieser Immobilie erfolgt OHNE KÄUFERPROVISION und exklusiv durch Bayer Immobilien. Wir weisen darauf hin, dass die von uns weitergegebenen Objektinformationen, Unterlagen, Pläne etc. vom Verkäufer stammen. Eine Haftung für die Richtigkeit oder Vollständigkeit der Angaben übernehmen wir daher nicht. Es obliegt daher unseren Kunden, die darin enthaltenen Objektinformationen und Angaben auf ihre Richtigkeit hin zu überprüfen. Alle Immobilienangebote sind freibleibend und vorbehaltlich Irrtümer, Zwischenverkauf- und Vermietung oder sonstiger Zwischenverwertung.

Lage

In der näheren Umgebung finden Sie mehrere Supermärkte, Bankfilialen, Ärzte, Cafés sowie Restaurants und Haltepunkte des Öffentlichen Nahverkehrs wie Bahn/Bus. Schulen, Kindergärten und alle Gegebenheiten des täglichen Bedarfs sind in kurzer Distanz fußläufig erreichbar.

In direkter Umgebung befindet sich mehrere Supermärkte wie ein Rewe, Edeka, Aldi und Netto Markt.

Die A54 sind nur wenige Fahrminuten entfernt und gewährleistet somit eine schnelle Autobahnanbindung.

Die dargestellte Position der Immobilie ist nur eine ungefähre Angabe.

Direktanfrage

 SSL-verschlüsselt