+49 23170096934 info@bayerimmobilien.com

Gepflegtes Mehrfamilienhaus mit 5 Parteien in Bochum-Linden!

44879 Bochum, Mehrfamilienhaus zum Kauf

Kontaktdaten

Alexander Bayer, Bayer Immobilien

Objektdaten

  • Objekt ID
    20251004
  • Objekttypen
    Haus, Mehrfamilienhaus
  • Adresse
    44879 Bochum
  • Etagen im Haus
    3
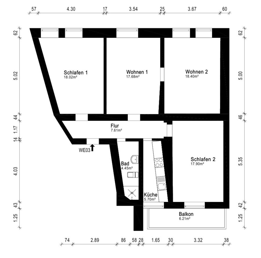
  • Wohnfläche ca.
    408,81 m²
  • Grund­stück ca.
    255 m²
  • Vermietbare Fläche ca.
    408,81 m²
  • Wohneinheiten
    5
  • Balkone
    4
  • Terrassen
    1
  • Wesentlicher Energieträger
    Gas
  • Baujahr
    1908
  • Zustand
    gepflegt
  • Status
    vermietet
  • Käufer­provision
    4,76% inkl. MwStr.
  • X-fache Miete
    15,39
  • Mieteinnahmen (Ist)
    38.926,80 EUR pro Jahr
  • Mieteinnahmen (Soll)
    38.926,80 EUR pro Jahr
  • Kaufpreis
    599.000 EUR

Ausstattung / Merkmale

  • Balkon
  • Keller
  • Terrasse

Energieausweis

  • Energieausweistyp
    Verbrauchs­ausweis
  • Ausstellungsdatum
    ab dem 1.5.2014
  • Gültig bis
    03.08.2026
  • Gebäudeart
    Wohngebäude
  • Baujahr lt. Energieausweis
    2011
  • Primärenergieträger
    Gas
  • Endenergie­verbrauch
    171,80 kWh/(m²·a)
  • Energie­effizienz­klasse
    F

Objekt­beschreibung

Beschreibung

Dieses Mehrfamilienhaus befindet sich in Bochum-Mitte und besteht aus insgesamt 5 Wohnparteien. 4 von 5 Parteien sind derzeit vermietet. Die Wohnungen sind in einem gepflegten oder renovierten Zustand. Insgesamt ist das Gebäude sehr gut unterhalten.

Letzte Sanierungsmaßnahmen:
+ Modernisierte Bäder 2017 - 2021
+ Erneuerung Gasetagenheizungen 04, 05, 17, 20 und 21
+ Dämmung Hausrückseite
+ Erneuerung Elektroleitungen 1998

Die monatlichen Mieteinnahmen belaufen sich auf 3.243,90€.
Die Jahresmieteinnahmen beträgt demnach 38.926,80€ p.a..
Ein Mietanpassungspotenzial ist vorhanden.

Ausstattung

+ Gasetagenheizungen
+ Balkone
+ Terrasse
+ Kellerabteile

Sonstige Informationen

Auf Anfrage senden wir Ihnen gerne weitere Informationen zu und vereinbaren mit Ihnen einen Beratungstermin. Bitte haben Sie Verständnis, dass wir um die Sicherheit & Privatsphäre des Bewohners zu wahren, Ihre Kontaktdaten benötigen. Bei Anfragen geben Sie bitte Ihre vollständigen Adressdaten und eine Telefonnummer an, da wir diese sonst nicht bearbeiten können.

Sie möchten eine maßgeschneiderte Finanzierung, die Ihre persönliche Situation und Ihre Wünsche berücksichtigt? Über unseren Bankpartner erstellen wir Ihnen gerne kostenlos ein unverbindliches Angebot.
Sprechen Sie uns an.

Haftungsausschluss:
Wir weisen darauf hin, dass die von uns weitergegebenen Objektinformationen, Unterlagen, Pläne etc. vom Verkäufer stammen. Eine Haftung für die Richtigkeit oder Vollständigkeit der Angaben übernehmen wir daher nicht. Es obliegt daher unseren Kunden, die darin enthaltenen Objektinformationen und Angaben auf ihre Richtigkeit hin zu überprüfen. Alle Immobilienangebote sind freibleibend und vorbehaltlich Irrtümer, Zwischenverkauf- und Vermietung oder sonstiger Zwischenverwertung.

Die Käuferprovision beträgt 4,76 % (inkl. gesetzl. MwSt.) vom notariellen Kaufpreis.

Lage

In der näheren Umgebung finden Sie mehrere Supermärkte, Bankfilialen, Ärzte, Cafés sowie Restaurants und Haltepunkte des Öffentlichen Nahverkehrs wie Bahn/Bus. Schulen,
Kindergärten und alle Gegebenheiten des täglichen Bedarfs sind in kurzer Distanz fußläufig erreichbar.

In direkter Nachbarschaft befindet sich einen Lidl, Aldi und Rewe Markt.

Eine gute Verkehrsanbindung ist durch die Nähe zur 449 in wenigen Fahrminuten gewährleistet und ermöglicht somit eine schnelle Anbindung an die umliegenden Städte.

Die dargestellte Position der Immobilie ist nur eine ungefähre Angabe.

Direktanfrage

 SSL-verschlüsselt