+49 23170096934 info@bayerimmobilien.com

Teil-Modernisiertes Reihenendhaus in Bönen! Mit Einbauküche, Garage, Kamin und Garten!

59199 Bönen, Reiheneckhaus zum Kauf

Kontaktdaten

Alexander Bayer, Bayer Immobilien

Objektdaten

  • Objekt ID
    20260303
  • Objekttypen
    Haus, Reiheneckhaus
  • Adresse
    59199 Bönen
  • Etagen im Haus
    2
  • Wohnfläche ca.
    147,27 m²
  • Grund­stück ca.
    623 m²
  • Zimmer
    4,5
  • Badezimmer
    3
  • Separate WC
    1
  • Terrassen
    1
  • Wesentlicher Energieträger
    Pellet
  • Baujahr
    1963
  • Zustand
    modernisiert
  • Verfügbar ab
    01.08.2026
  • Stellplatz:
    2 Stellplätze
  • Garage:
    1 Stellplatz
  • Käufer­provision
    2,98% inkl. 19% MwSt
  • Kaufpreis
    330.000 EUR

Ausstattung / Merkmale

  • Kabel-/Sat-TV
  • Kamin
  • Keller
  • Separates WC
  • Terrasse

Energieausweis

  • Energieausweistyp
    Bedarfs­ausweis
  • Ausstellungsdatum
    ab dem 1.5.2014
  • Gültig bis
    26.05.2035
  • Gebäudeart
    Wohngebäude
  • Baujahr lt. Energieausweis
    2013
  • Primärenergieträger
    Pellet
  • Endenergie­bedarf
    215,80 kWh/(m²·a)
  • Energie­effizienz­klasse
    G

Objekt­beschreibung

Beschreibung

Dieses hier angebotene Reihenendhaus aus dem Jahre 1963 befindet sich in einer ruhigen Wohnsiedlung in Bönen. Die Immobilie ist in einem Teil-Modernisierten Zustand und wurde in den vergangenen Jahren kernsaniert.

Letzte Modernisierungsmaßnahmen:
+ Erneuerung des Daches 1989
+ Dämmung des Daches 2012 (Dachziegel von 89 wurden wieder aufgesetzt)
+ Fassadendämmung 1990
+ Modernisierung Bad OG 2008
+ Erneuerung der Pellet-Heizung 2013
+ Modernisierung Bad im DG 2016
+ Erneuerung der Fenster 2020
+ Kernsanierung Erdgeschoss 2020
+ Erneuerung des Bades EG 2020

Ihr neues Eigenheim bietet Ihnen auf ca. 147,27 m² Wohnfläche 4,5 Zimmer mit einer hochwertigen Designer Einbauküche, drei Tageslichtbäder, einen Kaminofen, einer Terrasse samt Garten, Einer Garage und zwei bis drei Außenstellplätzen.

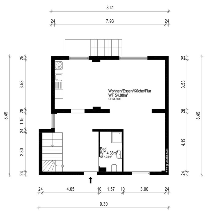
Sie erreichen über den Eingangsbereich zuerst das Tageslichtbad/Gäste-WC und anschließend die Küche. Weiterführend eröffnet sich Ihnen das Herzstück des Hauses, die große offene Küche mit Ess- und Wohnbereich. Die Einbauküche ist im Kaufpreis enthalten. Von hieraus haben Sie auch über eine Treppe Zugang zum Garten. Der Garten ist überdurchschnittlich groß, bietet aber mehr als ausreichend Platz für die Familie. Der Garten hat eine West-Ausrichtung.

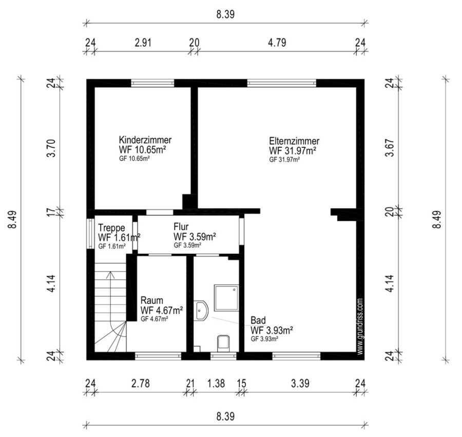
Im Obergeschoss finden Sie ein Kinderzimmer und ein großes Elternschlafzimmer. Dieses wurde aus zwei Zimmern zusammengelegt und kann wieder zu zwei Räumen aufgeteilt werden. Das Tageslichtbad hier verfügt über eine Dusche.

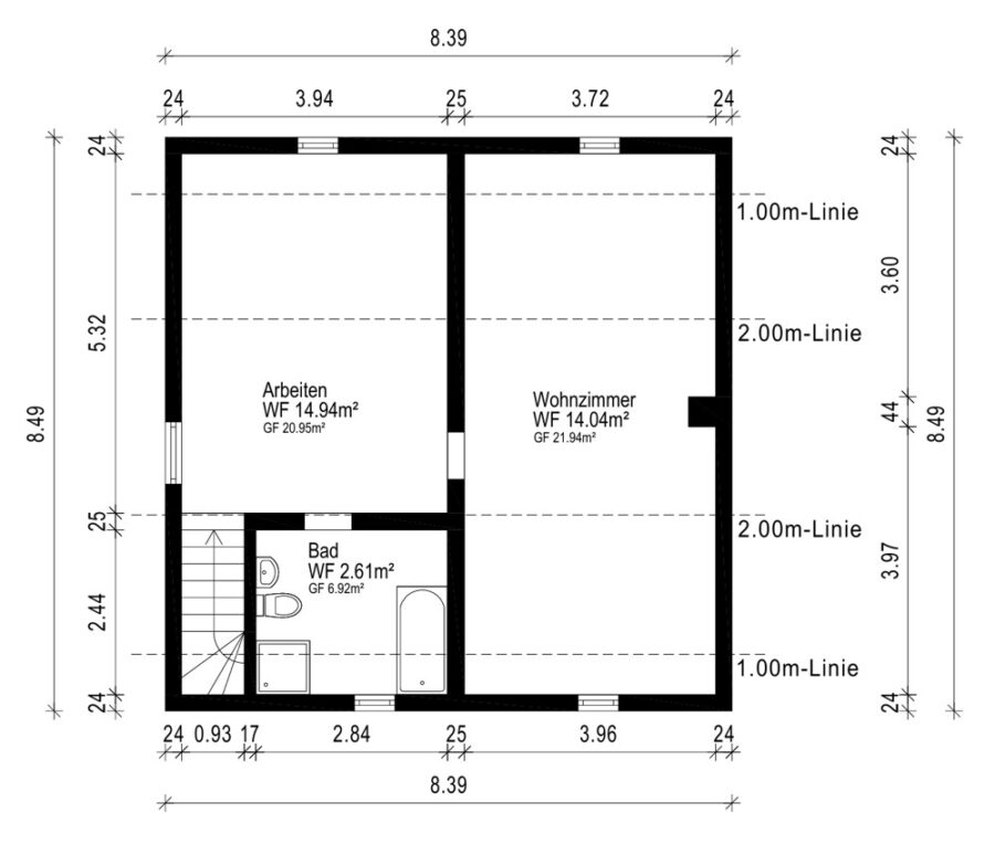
Über einen Durchgangsraum gelangen Sie ins Dachgeschoss. Im Dachgeschoss ist ein Kinder- oder Arbeitszimmer und ein Tageslichtbad mit einer Wanne.

Im Kellergeschoss befindet sich ein Hauswirtschaftsraum, ein Versorgungsraum sowie ein weiterer Raum für Lagerfläche

Ausstattung

+ Moderne Einbauküche samt Elektrogeräte (Backofen, Herd, Spülmaschine)
+ Terrasse samt Garten
+ Garage und weitere Außenstellplätze
+ Drei Bäder mit Dusche oder Badewanne
+ Kaminofen
+ Keller

Sonstige Informationen

Auf Anfrage senden wir Ihnen gerne weitere Informationen zu und vereinbaren mit Ihnen einen Beratungstermin. Bitte haben Sie Verständnis, dass wir um die Sicherheit & Privatsphäre des Bewohners zu wahren, Ihre Kontaktdaten benötigen. Bei Anfragen geben Sie bitte Ihre vollständigen Adressdaten und eine Telefonnummer an, da wir diese sonst nicht bearbeiten können.

Sie möchten eine maßgeschneiderte Finanzierung, die Ihre persönliche Situation und Ihre Wünsche berücksichtigt? Über unseren Bankpartner erstellen wir Ihnen gerne kostenlos ein unverbindliches Angebot. Sprechen Sie uns an.

Haftungsausschluss:
Wir weisen darauf hin, dass die von uns weitergegebenen Objektinformationen, Unterlagen, Pläne etc. vom Verkäufer stammen. Eine Haftung für die Richtigkeit oder Vollständigkeit der Angaben übernehmen wir daher nicht. Es obliegt daher unseren Kunden, die darin enthaltenen Objektinformationen und Angaben auf ihre Richtigkeit hin zu überprüfen. Alle Immobilienangebote sind freibleibend und vorbehaltlich Irrtümer, Zwischenverkauf- und Vermietung oder sonstiger Zwischenverwertung.

Es handelt sich hierbei um ein provisionspflichtiges Angebot. Durch die Inanspruchnahme unserer Maklertätigkeit kommt der Maklervertrag mit uns zu Stande. Bereits mit Ihrer Anfrage erklären Sie sich mit den Bedingungen dieses Exposés einverstanden. Die Käufercourtage in Höhe von 2,98% inkl. 19% MwSt. auf den Kaufpreis, ist bei notariellem Vertragsabschluss verdient und fällig. Der Immobilienmakler hat einen provisionspflichtigen Maklervertrag mit dem Verkäufer in gleicher Höhe abgeschlossen.

Lage

In der näheren Umgebung finden Sie mehrere Supermärkte, Bankfilialen, Ärzte, Cafés sowie Restaurants und Haltepunkte des Öffentlichen Nahverkehrs wie Bahn/Bus. Schulen, Kindergärten und alle Gegebenheiten des täglichen Bedarfs sind in kurzer Distanz fußläufig erreichbar.

In direkter Umgebung befindet sich ein Aldi, Lidl, Penny und Edeka Markt.

Die A2 sind in unmittelbarer Nähe und gewährleisten eine schnelle Autobahnanbindung.

Die dargestellte Position der Immobilie ist nur eine ungefähre Angabe.

Direktanfrage

 SSL-verschlüsselt