+49 23170096934 info@bayerimmobilien.com

Modernisiertes Reihenmittelhaus in Marl-Brassert! Mit Einbauküche, Garage, Garten und Klimaanlage!

45768 Marl, Reihenmittelhaus zum Kauf

Kontaktdaten

Alexander Bayer, Bayer Immobilien

Objektdaten

  • Objekt ID
    20260102
  • Objekttypen
    Haus, Reihenmittelhaus
  • Adresse
    45768 Marl
  • Etagen im Haus
    2
  • Wohnfläche ca.
    95,54 m²
  • Grund­stück ca.
    211 m²
  • Zimmer
    5
  • Badezimmer
    1
  • Separate WC
    1
  • Terrassen
    1
  • Heizungsart
    Etagenheizung
  • Wesentlicher Energieträger
    Gas
  • Baujahr
    1957
  • Zustand
    modernisiert
  • Verfügbar ab
    ab sofort
  • Garage:
    1 Stellplatz
  • Käufer­provision
    2,98% inkl. 19% MwSt
  • Kaufpreis
    280.000 EUR

Ausstattung / Merkmale

  • Kabel-/Sat-TV
  • Keller
  • Separates WC
  • Terrasse

Energieausweis

  • Energieausweistyp
    Bedarfs­ausweis
  • Ausstellungsdatum
    ab dem 1.5.2014
  • Gültig bis
    25.01.2036
  • Gebäudeart
    Wohngebäude
  • Baujahr lt. Energieausweis
    2017
  • Primärenergieträger
    Gas
  • Endenergie­bedarf
    182,33 kWh/(m²·a)
  • Energie­effizienz­klasse
    F

Objekt­beschreibung

Beschreibung

Dieses hier angebotene Reihenmittelhaus aus dem Jahre 1957 befindet sich in einer ruhigen Wohnsiedlung in Marl-Brassert auf einem Grundstück mit ca. 211,00 m². Die Immobilie ist in einem modernisierten Zustand.

Letzte Modernisierungen:
+ Erneuerung des Daches 1988
+ Erneuerung der Fenster 2004
+ Einbau der Küche 2017
+ Kernsanierung 2017
+ Erneuerung der Heizung 2017

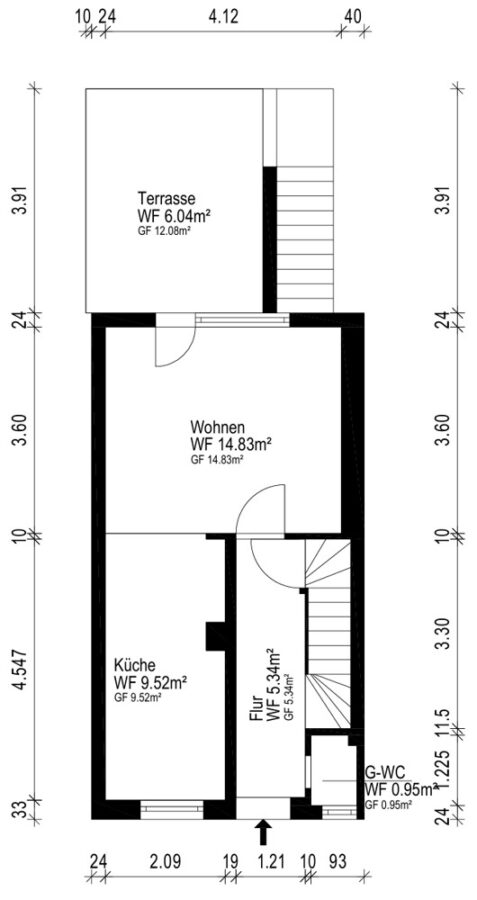
Ihr neues Eigenheim bietet Ihnen auf ca. 96,00 m² Wohnfläche 5 Zimmer, ein Bad, eine Küche, eine Garage, eine Terrasse samt Überdachung und Garten.

Sie erreichen vom Eingangsbereich zuerst das Gäste-WC. Die Küche lädt zu entspannten Kochabenden mit Freunden und der Familie ein. Die Einbauküche ist im Kaufpreis enthalten. Weiterführend eröffnet sich Ihnen das Herzstück des Hauses, das Wohnzimmer mit kleinem Essbereich und Zugang zum Garten. Dieser ist überdurchschnittlich groß, bietet aber mehr als ausreichend Platz für die Familie.
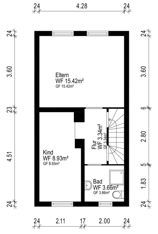
Im Obergeschoss finden Sie ein Kinderzimmer, ein Elternschlafzimmer und ein Tageslichtbad. Das Dachgeschoss ist ausgebaut wo sich ebenfalls ein Zimmer befindet. Im Keller befindet sich ein Souterrain-Zimmer, welches als Arbeitszimmer genutzt werden kann. Im Keller ist ebenfalls ein Hauswirtschaftsraum und Versorgungsraum vorhanden.

Ausstattung

+ Einbauküche samt Geräte
+ Kilmaanlage
+ Garten samt Terrasse und Gartenhäuschen
+ Garage
+ Keller

Optional können Möbel übernommen werden.

Sonstige Informationen

Auf Anfrage senden wir Ihnen gerne weitere Informationen zu und vereinbaren mit Ihnen einen Beratungstermin. Bitte haben Sie Verständnis, dass wir um die Sicherheit & Privatsphäre des Bewohners zu wahren, Ihre Kontaktdaten benötigen. Bei Anfragen geben Sie bitte Ihre vollständigen Adressdaten und eine Telefonnummer an, da wir diese sonst nicht bearbeiten können.

Sie möchten eine maßgeschneiderte Finanzierung, die Ihre persönliche Situation und Ihre Wünsche berücksichtigt? Über unseren Bankpartner erstellen wir Ihnen gerne kostenlos ein unverbindliches Angebot. Sprechen Sie uns an.

Haftungsausschluss:
Wir weisen darauf hin, dass die von uns weitergegebenen Objektinformationen, Unterlagen, Pläne etc. vom Verkäufer stammen. Eine Haftung für die Richtigkeit oder Vollständigkeit der Angaben übernehmen wir daher nicht. Es obliegt daher unseren Kunden, die darin enthaltenen Objektinformationen und Angaben auf ihre Richtigkeit hin zu überprüfen. Alle Immobilienangebote sind freibleibend und vorbehaltlich Irrtümer, Zwischenverkauf- und Vermietung oder sonstiger Zwischenverwertung.

Es handelt sich hierbei um ein provisionspflichtiges Angebot. Durch die Inanspruchnahme unserer Maklertätigkeit kommt der Maklervertrag mit uns zu Stande. Bereits mit Ihrer Anfrage erklären Sie sich mit den Bedingungen dieses Exposés einverstanden. Die Käufercourtage in Höhe von 2,98% inkl. 19% MwSt. auf den Kaufpreis, ist bei notariellem Vertragsabschluss verdient und fällig. Der Immobilienmakler hat einen provisionspflichtigen Maklervertrag mit dem Verkäufer in gleicher Höhe abgeschlossen.

Lage

In der näheren Umgebung finden Sie mehrere Supermärkte, Bankfilialen, Ärzte, Cafés sowie Restaurants und Haltepunkte des Öffentlichen Nahverkehrs wie Bahn/Bus. Schulen, Kindergärten und alle Gegebenheiten des täglichen Bedarfs sind in kurzer Distanz fußläufig erreichbar.

In direkter Umgebung befindet sich ein Rewe und Netto Markt.

Die A43, A2 und 52 sind wenige Fahrminuten entfernt und gewährleistet somit eine schnelle Autobahnanbindung.

Die dargestellte Position der Immobilie ist nur eine ungefähre Angabe.

Direktanfrage

 SSL-verschlüsselt