+49 23170096934 info@bayerimmobilien.com

Gepflegte 3,5 Zimmerwohnung in Bochum-Querenburg! Mit Fahrstuhl und Balkon!

44801 Bochum, Etagenwohnung zum Kauf

Kontaktdaten

Alexander Bayer, Bayer Immobilien

Objektdaten

  • Objekt ID
    20260307
  • Objekttypen
    Etagenwohnung, Wohnung
  • Adresse
    44801 Bochum
  • Etage
    6
  • Etagen im Haus
    6
  • Wohnfläche ca.
    87,41 m²
  • Zimmer
    3,5
  • Badezimmer
    1
  • Balkone
    1
  • Heizungsart
    Fernwärme
  • Wesentlicher Energieträger
    Erdwärme
  • Baujahr
    1970
  • Zustand
    gepflegt
  • Hausgeld
    421,32 EUR
  • Käufer­provision
    2,98% inkl. 19% MwSt
  • Kaufpreis
    170.000 EUR

Ausstattung / Merkmale

  • Balkon
  • Keller
  • Personenaufzug

Energieausweis

  • Energieausweistyp
    Verbrauchs­ausweis
  • Ausstellungsdatum
    ab dem 1.5.2014
  • Gültig bis
    13.09.2030
  • Gebäudeart
    Wohngebäude
  • Baujahr lt. Energieausweis
    1972
  • Primärenergieträger
    Fernwärme
  • Endenergie­verbrauch
    112,30 kWh/(m²·a)
  • Energie­effizienz­klasse
    D

Objekt­beschreibung

Beschreibung

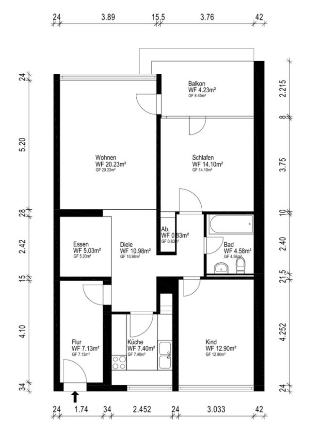
Diese gepflegte 3,5-Zimmerwohnung mit attraktivem Grundriss liegt in einem ruhigen Mehrfamilienhaus in Bochum-Querenburg. Das gesamte Gebäude ist in einem soliden Zustand. Die Wohnung ist in einem teil-renovierten Zustand. Derzeit steht die Wohnung leer und unvermietet.

Letzte Modernisierungsmaßnahmen:
+ Erneuerung der Fenster 2010 und 2019
+ Renovierung der Wohnung 2019
+ Erneuerung des Bades 2019

Auf ca. 87 m² Wohnfläche erreichen Sie über den Eingangsbereich zuerst die Garderobe. Von der Diele erreichen Sie links das große offene Wohnzimmer und Essbereich mit Zugang zum Balkon. Im Elternschlafzimmer ist genügend Platz für einen großen Schrank und ein Doppelbett. Vom Elternschlafzimmer haben Sie ebenfalls Zugang zum Balkon. Das hell geflieste Bad verfügt über eine Duschwanne und WC. Das Kinderzimmer hat genug Platz für einen großen Schrank, Schreibtisch und ein Bett. Die Küche hat eine durchschnittliche Größe und einen Waschmaschinenanschluss.

Mit dem vorhandenen Kellerraum steht weitere Nutzfläche bereit.

Das Hausgeld inkl. Heizkosten beträgt 421,00€. Heizkosten betragen davon 152,00€. Die nicht-umlagefähigen Kosten betragen 37,00€

Der aktuelle Eigentümer hat für die Erneuerung der Balkon eine Sonderumlage von 2.080,00€ gezahlt. Ende April und ende Juni folgen noch mal jeweils 2.080,00€.

Ausstattung

+ Fahrstuhl
+ Balkon
+ Freisprechanlage
+ Kellerabteil
+ Waschmaschinenanschluss in der Wohnung

Sonstige Informationen

Auf Anfrage senden wir Ihnen gerne weitere Informationen zu und vereinbaren mit Ihnen einen Beratungstermin. Bitte haben Sie Verständnis, dass wir um die Sicherheit & Privatsphäre des Bewohners zu wahren, Ihre Kontaktdaten benötigen. Bei Anfragen geben Sie bitte Ihre vollständigen Adressdaten und eine Telefonnummer an, da wir diese sonst nicht bearbeiten können.

Sie möchten eine maßgeschneiderte Finanzierung, die Ihre persönliche Situation und Ihre Wünsche berücksichtigt? Über unseren Bankpartner erstellen wir Ihnen gerne kostenlos ein unverbindliches Angebot. Sprechen Sie uns an.

Haftungsausschluss:
Wir weisen darauf hin, dass die von uns weitergegebenen Objektinformationen, Unterlagen, Pläne etc. vom Verkäufer stammen. Eine Haftung für die Richtigkeit oder Vollständigkeit der Angaben übernehmen wir daher nicht. Es obliegt daher unseren Kunden, die darin enthaltenen Objektinformationen und Angaben auf ihre Richtigkeit hin zu überprüfen. Alle Immobilienangebote sind freibleibend und vorbehaltlich Irrtümer, Zwischenverkauf- und Vermietung oder sonstiger Zwischenverwertung.

Es handelt sich hierbei um ein provisionspflichtiges Angebot. Durch die Inanspruchnahme unserer Maklertätigkeit kommt der Maklervertrag mit uns zu Stande. Bereits mit Ihrer Anfrage erklären Sie sich mit den Bedingungen dieses Exposés einverstanden. Die Käufercourtage in Höhe von 2,98% inkl. 19% MwSt. auf den Kaufpreis, ist bei notariellem Vertragsabschluss verdient und fällig. Der Immobilienmakler hat einen provisionspflichtigen Maklervertrag mit dem Verkäufer in gleicher Höhe abgeschlossen.

Lage

In der näheren Umgebung finden Sie mehrere Supermärkte, Bankfilialen, Ärzte, Cafés sowie Restaurants und Haltepunkte des Öffentlichen Nahverkehrs wie Bahn/Bus. Schulen, Kindergärten und alle Gegebenheiten des täglichen Bedarfs (Apotheken, Bäckereien, Kiosk etc.) sind in kurzer Distanz fußläufig erreichbar.

In direkter Umgebung befinden sich mehrere Supermärkte wie ein Lidl und Aldi Markt.

Die 448 und A40, A43 sind wenige Fahrminuten entfernt und gewährleistet somit eine schnelle Autobahnverbindung.

Die dargestellte Position der Immobilie ist nur eine ungefähre Angabe.

Direktanfrage

 SSL-verschlüsselt