+49 23170096934 info@bayerimmobilien.com

Vermietete 3-Zimmerwohnung im Magazingebäude am Phoenix-See Dortmund! Mit Stellplatz und Balkon!

44263 Dortmund, Etagenwohnung zum Kauf

Kontaktdaten

Alexander Bayer, Bayer Immobilien

Objektdaten

  • Objekt ID
    20260302WE18
  • Objekttypen
    Etagenwohnung, Wohnung
  • Adresse
    44263 Dortmund
  • Etage
    2
  • Etagen im Haus
    4
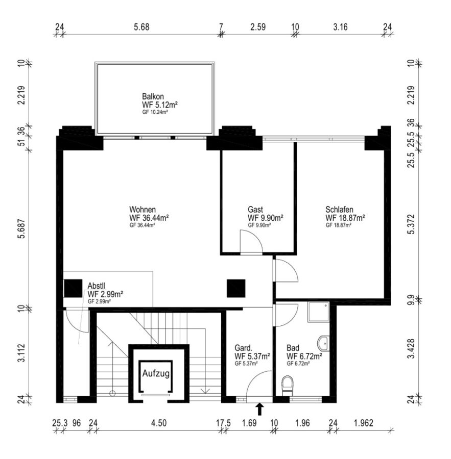
  • Wohnfläche ca.
    86 m²
  • Zimmer
    3
  • Badezimmer
    1
  • Balkone
    1
  • Heizungsart
    Zentralheizung
  • Wesentlicher Energieträger
    Gas
  • Baujahr
    2014
  • Zustand
    gepflegt
  • Status
    vermietet
  • Verfügbar ab
    vermietet
  • Tiefgarage:
    1 Stellplatz
  • Hausgeld
    493,51 EUR
  • Käufer­provision
    2,98% inkl. 19% MwSt
  • Kaufpreis
    320.000 EUR

Ausstattung / Merkmale

  • Balkon
  • Keller
  • Personenaufzug

Energieausweis

nicht erforderlich

Objekt­beschreibung

Beschreibung

Wichtig: Da es sich hier um eine Wohnung mit Erbbaurecht handelt, ist ein Kapitalnachweis erforderlich.

+++Schauen Sie sich den virtuellen 360 Grad Rundgang an+++
https://tour.ogulo.com/tCVX

Diese vermietete 3-Zimmer-Etagenwohnung befindet sich im Denkmalgeschützen Magazingebäude auf Erbbaurecht am Phoenix-See in Dortmund-Hörde. Zu Wohnzwecken saniert, spiegelt es auf eindrucksvolle Weise noch das Zusammenspiel unterschiedlicher Architekturen der damaligen Zeit wieder und bietet seinen neuen Eigentümern und Mietern heute eine eindrucksvolle Wohnimmobilie des gehobenen Standards.

Auf ca. 86 m² Wohnfläche erreichen Sie zuerst das Bad, das Schlafzimmer und das Arbeitszimmer. Über die Diele gelangen Sie zum großen Wohnzimmer mit offener Küche und Balkon, welcher eine Atmosphäre zum Wohlfühlen schaffen. An der Küche ist ein kleiner Abstellraum.

Das Badezimmer ist mit dunklen Boden- sowie hellen Wandfliesen ausgestattet. Es verfügt über eine Fußbodenheizung, Dusche, WC sowie einer Wascharmatur. Alle Räume sind großzügig geschnitten.

Ein kleiner Kellerraum gehört ebenfalls zur Wohnung.

Derzeit ist die Wohnung gegen eine Kaltmiete von 850,00€ und 70,00€ für den Tiefgaragenstellplatz vermietet.

Das Hausgeld inkl. Heizkosten beträgt für die Wohnung ca. 493,51€. Heizkosten betragen ca. 169,39€. Die nicht-umlagefähigen Kosten betragen ca. 124,00€

Was sind die Vorteile dieses Angebots?
+ Attraktiver Quadratmeterpreis deutlich unter Marktniveau am Phoenix-See
+ Attraktive steuerliche Abschreibungsmöglichkeiten durch Denkmalschutz (Denkmal-Afa gem. § 7i EStG)
+ Repräsentatives Wohnquartier

Ausstattung

Für die Wohnung besteht ein Erbbaurecht bis zum Jahre 2110. Der Erbbauzins beträgt monatlich ca. EUR 104,50 €. Jährlich EUR 1.254,09 €.

+ Denkmalschutz
+ Parkettboden
+ Designer Bad mit Dusche, WC und Wascharmatur
+ Fußbodenheizung im Bad
+ Video-Tür-Klingel-Sprechanlage (Farbmonitor)
+ Balkon
+ Isolierte Fenster mit 3-Fachverglasung
+ Kellerabteil
+ Trockenraum mit Waschküche
+ Tiefgaragenstellplatz
+ Fahrstuhl

Sonstige Informationen

Auf Anfrage senden wir Ihnen gerne weitere Informationen zu und vereinbaren mit Ihnen einen Beratungstermin. Bitte haben Sie Verständnis, dass wir um die Sicherheit & Privatsphäre des Bewohners zu wahren, Ihre Kontaktdaten benötigen. Bei Anfragen geben Sie bitte Ihre vollständigen Adressdaten und eine Telefonnummer an, da wir diese sonst nicht bearbeiten können.

Sie möchten eine maßgeschneiderte Finanzierung, die Ihre persönliche Situation und Ihre Wünsche berücksichtigt? Über unseren Bankpartner erstellen wir Ihnen gerne kostenlos ein unverbindliches Angebot. Sprechen Sie uns an.

Haftungsausschluss:
Wir weisen darauf hin, dass die von uns weitergegebenen Objektinformationen, Unterlagen, Pläne etc. vom Verkäufer stammen. Eine Haftung für die Richtigkeit oder Vollständigkeit der Angaben übernehmen wir daher nicht. Es obliegt daher unseren Kunden, die darin enthaltenen Objektinformationen und Angaben auf ihre Richtigkeit hin zu überprüfen. Alle Immobilienangebote sind freibleibend und vorbehaltlich Irrtümer, Zwischenverkauf- und Vermietung oder sonstiger Zwischenverwertung.

Es handelt sich hierbei um ein provisionspflichtiges Angebot. Durch die Inanspruchnahme unserer Maklertätigkeit kommt der Maklervertrag mit uns zu Stande. Bereits mit Ihrer Anfrage erklären Sie sich mit den Bedingungen dieses Exposés einverstanden. Die Käufercourtage in Höhe von 2,98% inkl. 19% MwSt. auf den Kaufpreis, ist bei notariellem Vertragsabschluss verdient und fällig. Der Immobilienmakler hat einen provisionspflichtigen Maklervertrag mit dem Verkäufer in gleicher Höhe abgeschlossen.

Lage

Die Liegenschaft befindet sich wenige Meter vom Phoenix See-Dortmund entfernt.
Der Phoenix See ist eines der größten Stadtentwicklungsprojekte Deutschlands. Nach 160 Jahren deutscher Stahlhistorie des ehemaligen Stahlwerkes der ThyssenKrupp AG entstand auf insgesamt 100 Hektar ein neues Naherholungsgebiet, umgeben von einem erstklassigen Wohngebiet.

In der näheren Umgebung finden Sie mehrere Supermärkte, Bankfilialen, Drogerien sowie das Hörder Zentrum als wichtiges Nebenzentrum des Dortmunder Südens. Die Wohnung befindet in der unmittelbaren Nähe der Fußgängerzone, wo sich weitere Einkaufsmöglichkeiten, Cafés sowie Restaurants und Haltepunkte des Öffentlichen Nahverkehrs wie Bahn/Bus befinden.

Schulen, Kindergärten und alle Gegebenheiten des täglichen Bedarfs sind in kurzer Distanz fußläufig erreichbar.

Eine gute Verkehrsanbindung ist durch die Nähe zur B 236 sowie zum Hörder Bahnhof für den öffentlichen Personennahverkehr gewährleistet.

Die dargestellte Position der Immobilie ist nur eine ungefähre Angabe.

Direktanfrage

 SSL-verschlüsselt