+49 23170096934 info@bayerimmobilien.com

Vermietete 3-Zimmerwohnung in Hagen-Wehringhausen! Mit Balkon und Aufzug!

58069 Hagen, Etagenwohnung zum Kauf

Kontaktdaten

Alexander Bayer, Bayer Immobilien

Objektdaten

  • Objekt ID
    20250601
  • Objekttypen
    Etagenwohnung, Wohnung
  • Adresse
    58069 Hagen
  • Etage
    3
  • Etagen im Haus
    3
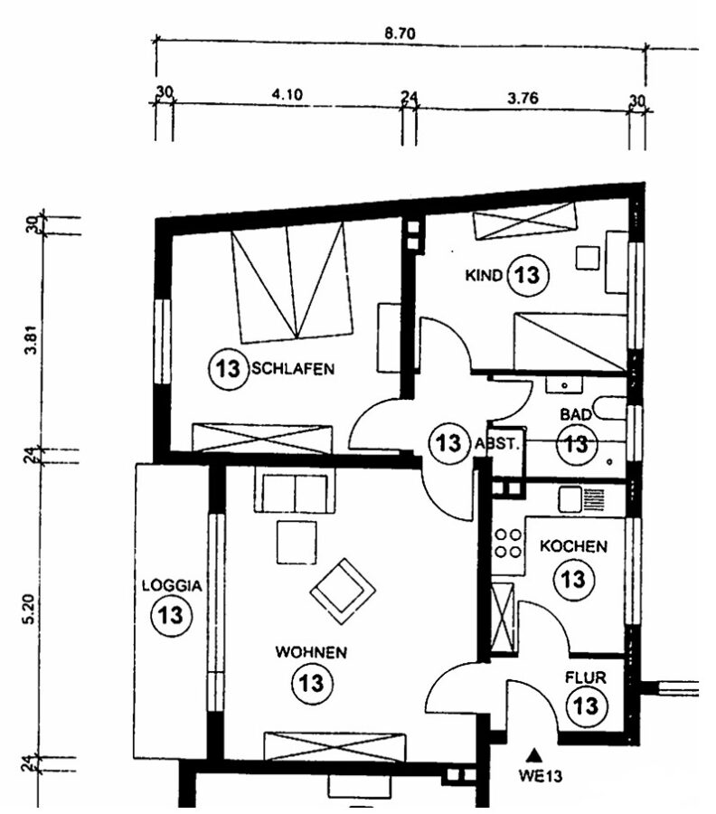
  • Wohnfläche ca.
    66,20 m²
  • Zimmer
    3
  • Badezimmer
    1
  • Balkone
    1
  • Heizungsart
    Zentralheizung
  • Wesentlicher Energieträger
    Gas
  • Baujahr
    1960
  • Zustand
    gepflegt
  • Status
    vermietet
  • Verfügbar ab
    vermietet
  • Hausgeld
    270 EUR
  • Käufer­provision
    3,57% inkl. 19% MwSt.
  • Kaufpreis
    69.000 EUR

Ausstattung / Merkmale

  • Balkon
  • Kabel-/Sat-TV
  • Keller
  • Personenaufzug

Energieausweis

  • Energieausweistyp
    Bedarfs­ausweis
  • Ausstellungsdatum
    ab dem 1.5.2014
  • Gültig bis
    16.12.2025
  • Gebäudeart
    Wohngebäude
  • Baujahr lt. Energieausweis
    2012
  • Primärenergieträger
    Gas
  • Endenergie­bedarf
    149,40 kWh/(m²·a)
  • Energie­effizienz­klasse
    E

Objekt­beschreibung

Beschreibung

Die hier angebotene 3-Zimmerwohnung liegt im 3. Obergeschosses eines ruhigen Mehrfamilienhauses in Hagen-Wehringhausen. Das gesamte Gebäude befindet sich in einem gepflegten Zustand. Die Wohnung ist in einem gepflegten Zustand mit leichtem renovierungsbedarf.

Auf einer Wohnfläche von ca. 66,20 m², die sich auf drei Zimmer verteilen, gibt es genügend Platz zum komfortablen wohnen. Vom Eingangsbereich erreichen Sie zuerst die Küche. Weiterführend eröffnet sich Ihnen das Herzstück der Wohnung, das große Wohnzimmer mit Zugang zum Balkon, welche eine Atmosphäre zum Wohlfühlen schafft. Das großzügige Schlafzimmer verfügt über genügen Platz für einen großen Schrank und Doppelbett. Das dritte Zimmer hat genug Platz für einen Schrank, Schreibtisch und ein Bett. Das Tageslichtbad ist mit einer Duschwanne ausgestattet.

Die Wohnung gegen eine solide Kaltmiete von 358,00€ vermietet. Die Kaltmiete wurde zum 01.12.2025 auf 446,82€ erhöht.

Ausstattung

+ Tageslichtbad
+ Kellerabteil
+ Fahrstuhl
+ Waschmaschinenanschluss in der Wohnung
+ Balkon

Sonstige Informationen

Auf Anfrage senden wir Ihnen gerne weitere Informationen zu und vereinbaren mit Ihnen einen Beratungstermin. Bitte haben Sie Verständnis, dass wir um die Sicherheit & Privatsphäre des Bewohners zu wahren, Ihre Kontaktdaten benötigen. Bei Anfragen geben Sie bitte Ihre vollständigen Adressdaten und eine Telefonnummer an, da wir diese sonst nicht bearbeiten können.

Sie möchten eine maßgeschneiderte Finanzierung, die Ihre persönliche Situation und Ihre Wünsche berücksichtigt? Über unseren Bankpartner erstellen wir Ihnen gerne kostenlos ein unverbindliches Angebot. Sprechen Sie uns an.

Haftungsausschluss:
Wir weisen darauf hin, dass die von uns weitergegebenen Objektinformationen, Unterlagen, Pläne etc. vom Verkäufer stammen. Eine Haftung für die Richtigkeit oder Vollständigkeit der Angaben übernehmen wir daher nicht. Es obliegt daher unseren Kunden, die darin enthaltenen Objektinformationen und Angaben auf ihre Richtigkeit hin zu überprüfen. Alle Immobilienangebote sind freibleibend und vorbehaltlich Irrtümer, Zwischenverkauf- und Vermietung oder sonstiger Zwischenverwertung.

Es handelt sich hierbei um ein provisionspflichtiges Angebot. Durch die Inanspruchnahme unserer Maklertätigkeit kommt der Maklervertrag mit uns zu Stande. Bereits mit Ihrer Anfrage erklären Sie sich mit den Bedingungen dieses Exposés einverstanden. Die Käufercourtage in Höhe von 3,57% inkl. 19% MwSt. auf den Kaufpreis, ist bei notariellem Vertragsabschluss verdient und fällig. Der Immobilienmakler hat einen provisionspflichtigen Maklervertrag mit dem Verkäufer in gleicher Höhe abgeschlossen.

Lage

In der näheren Umgebung finden Sie mehrere Supermärkte, Bankfilialen, Ärzte, Cafés sowie Restaurants und Haltepunkte des Öffentlichen Nahverkehrs wie Bahn/Bus. Schulen, Kindergärten und alle Gegebenheiten des täglichen Bedarfs sind in kurzer Distanz fußläufig erreichbar.

In direkter Umgebung befindet sich ein Lidl und Rewe Markt.

Die A1 und A45 sind wenige Fahrminuten entfernt und gewährleisten somit eine schnelle Autobahnanbindung.

Die dargestellte Position der Immobilie ist nur eine ungefähre Angabe.

Direktanfrage

 SSL-verschlüsselt