+49 23170096934 info@bayerimmobilien.com

Renoviertes Apartment in Münster-Hiltrup! Mit Einbauküche, Balkon und Garage!

48165 Münster, Etagenwohnung zum Kauf

Kontaktdaten

Alexander Bayer, Bayer Immobilien

Objektdaten

  • Objekt ID
    20260305
  • Objekttypen
    Etagenwohnung, Wohnung
  • Adresse
    48165 Münster
  • Etage
    1
  • Etagen im Haus
    1
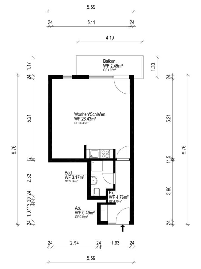
  • Wohnfläche ca.
    37,34 m²
  • Zimmer
    1
  • Badezimmer
    1
  • Balkone
    1
  • Heizungsart
    Zentralheizung
  • Wesentlicher Energieträger
    Gas
  • Baujahr
    1983
  • Zustand
    teil-/vollrenoviert
  • Verfügbar ab
    nach Absprache
  • Duplex:
    20.000 EUR (Anzahl: 1)
  • Hausgeld
    188 EUR
  • Käufer­provision
    2,98% inkl. 19% MwSt
  • Kaufpreis
    175.000 EUR

Ausstattung / Merkmale

  • Balkon
  • Keller

Energieausweis

  • Energieausweistyp
    Verbrauchs­ausweis
  • Ausstellungsdatum
    ab dem 1.5.2014
  • Gültig bis
    26.12.2031
  • Gebäudeart
    Wohngebäude
  • Baujahr lt. Energieausweis
    2005
  • Primärenergieträger
    Gas
  • Endenergie­verbrauch
    134,10 kWh/(m²·a)
  • Energie­effizienz­klasse
    E

Objekt­beschreibung

Beschreibung

+++Schauen Sie sich den virtuellen 360 Grad Rundgang an+++
https://tour.ogulo.com/C1qA

Dies Apartment liegt im ersten Obergeschosses eines ruhigen Mehrfamilienhauses in Münster-Hiltrup. Die WEG besteht aus insgesamt 24 Parteien. Das gesamte Gebäude befindet sich in einem gepflegten Zustand. Derzeit ist die Wohnung unvermietet
und steht samt den Möbeln (optional) zum Verkauf.

Letzte Modernisierungsmaßnahmen:
+ Erneuerung der Gaszentralheizung 2005
+ Renovierung der Wohnung 2012
+ Erneuerung der Fenster 2024

Die Eigentumswohnung bietet auf ca. 38 m² einen Wohn-/Schlafbereich mit einem kleinen Küchenbereich, einen Balkon und ein hell gefliestes Bad.

Mit dem vorhandenen Kellerraum steht weitere Nutzfläche bereit.

Das monatliche Hausgeld beträgt für die Wohnung 188,00€ inkl. Heizkosten. Davon sind ca. 61,00€ nicht umlegbare Kosten.

Die Instandhaltungsrücklage der WEG beträgt derzeit ca. 16.000€

Ausstattung

+ Einbauküche samt Geräte
+ Klingel Freisprechanlage
+ Balkon
+ gefliestes Bad
+ Waschmaschinenanschluss im Badezimmer
+ Kellerabteil
+ Optional Möbel
+ Optional Garage

Sonstige Informationen

Auf Anfrage senden wir Ihnen gerne weitere Informationen zu und vereinbaren mit Ihnen einen Beratungstermin. Bitte haben Sie Verständnis, dass wir um die Sicherheit & Privatsphäre des Bewohners zu wahren, Ihre Kontaktdaten benötigen. Bei Anfragen geben Sie bitte Ihre vollständigen Adressdaten und eine Telefonnummer an, da wir diese sonst nicht bearbeiten können.

Sie möchten eine maßgeschneiderte Finanzierung, die Ihre persönliche Situation und Ihre Wünsche berücksichtigt? Über unseren Bankpartner erstellen wir Ihnen gerne kostenlos ein unverbindliches Angebot. Sprechen Sie uns an.

Haftungsausschluss:
Wir weisen darauf hin, dass die von uns weitergegebenen Objektinformationen, Unterlagen, Pläne etc. vom Verkäufer stammen. Eine Haftung für die Richtigkeit oder Vollständigkeit der Angaben übernehmen wir daher nicht. Es obliegt daher unseren Kunden, die darin enthaltenen Objektinformationen und Angaben auf ihre Richtigkeit hin zu überprüfen. Alle Immobilienangebote sind freibleibend und vorbehaltlich Irrtümer, Zwischenverkauf- und Vermietung oder sonstiger Zwischenverwertung.

Es handelt sich hierbei um ein provisionspflichtiges Angebot. Durch die Inanspruchnahme unserer Maklertätigkeit kommt der Maklervertrag mit uns zu Stande. Bereits mit Ihrer Anfrage erklären Sie sich mit den Bedingungen dieses Exposés einverstanden. Die Käufercourtage in Höhe von 2,98% inkl. 19% MwSt. auf den Kaufpreis, ist bei notariellem Vertragsabschluss verdient und fällig. Der Immobilienmakler hat einen provisionspflichtigen Maklervertrag mit dem Verkäufer in gleicher Höhe abgeschlossen.

Lage

In der näheren Umgebung finden Sie das Stadtteilzentrum Hiltrup mit mehreren Supermärkten, Bankfilialen, Ärzte, Cafés sowie Restaurants und Haltepunkte des Öffentlichen Nahverkehrs wie Bahn/Bus. Schulen, Kindergärten und alle Gegebenheiten des täglichen Bedarfs sind in kurzer Distanz fußläufig erreichbar.

In direkter Umgebung befindet sich ein Aldi, Lidl und Penny Markt.

Die A1 und B54 sind wenige Fahrminuten entfernt und gewährleisten eine schnelle Autobahnanbindung.

Die dargestellte Position der Immobilie ist nur eine ungefähre Angabe.

Direktanfrage

 SSL-verschlüsselt